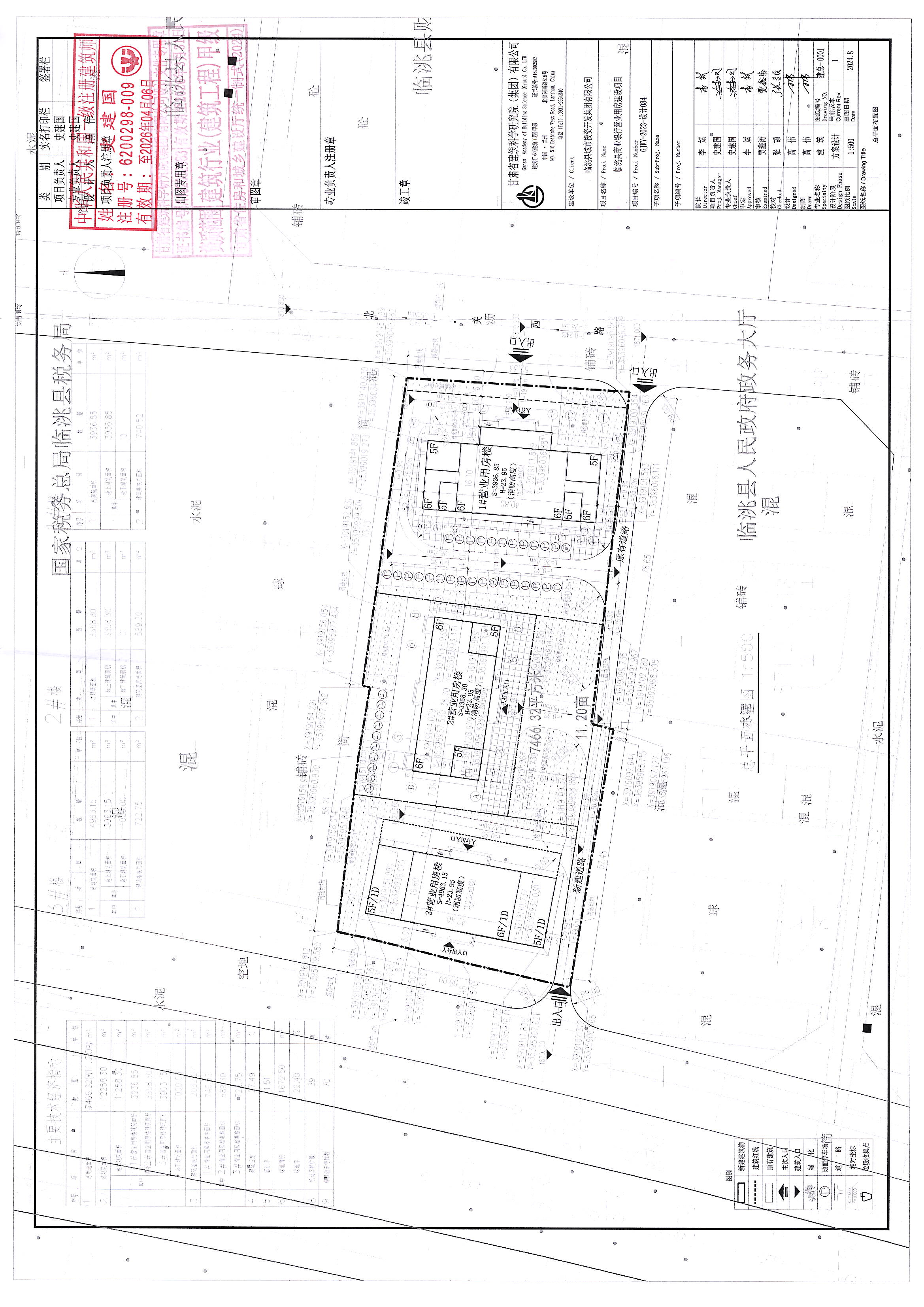
县自然资源局: 你局《关于临洮县商业银行营业用房建设项目建设方案的请示》(临自然资源发〔2024〕150号)收悉,经2024年8月2日县政府第六十二次常务会议研究,原则同意该建设方案。现批复如下: 一、规划位置及占地面积:该项目位于临洮县洮阳镇秦汉北路西侧,东邻秦汉北路,南邻建设用地,西邻兰临西二路,北邻国税局,总用地面7466.32平方米(约合11.2亩)。 二、用地性质:B类-B2-B21金融保险用地。 三、建设内容及规模:该项目新建5层(局部6层)营业用房3栋。总建筑面积12258.3平方米,其中地上建筑面积11258.3平方米(1#营业用房建筑面积3936.85平方米,2#营业用房建筑
面积3358.3平方米,3#营业用房建筑面积3963.15平方米),地下建筑面积1000平方米。建筑物基底面积2052.57平方米,绿地面积1672.5平方米,容积率1.51,建筑密度27.49%,绿地率22.4%,机动车停车位39辆,非机动车停车位70辆。 四、概算投资及资金来源:项目概算投资6500万元,全部由企业自筹。 五、建设期限:二年(2024年8月—2026年8月)。 六、人防要求:严格按照定西市人防建设规范标准执行。 七、建设要求:严格按照土地规划用途及建设方案进行建设,不准擅自改变土地性质,并配套完善消防、新能源车辆充电、绿化等附属设施。同时,临洮县人民政府《关于中国工商银行临洮支行营业用房建设方案的批复》(〔2023〕63号)废止。 接此批复后,由你局会同县住建局和洮阳镇人民政府等单位,抓紧依法办理各项前期手续,督促建设单位在6个月内尽快动工建设,争取项目早日建成使用。 此复。 附件:临洮县商业银行营业用房建设项目总平面布置图 临洮县人民政府 2024年8月15日 
|